BOP Freizeit & Vereine Informationen Fabrik Pinnwand Ausweis Lesen Frauen und Beruf Frauen und Bildung Reisepass Medizin Helfen Haus Callcenter Familienzuhause Großvater Erziehung Familie mit Kind Verlobung Erde Tod Bau Zertifikat Katze Auto Datum und Uhrzeit Abmachung Wegweiser Vertrag Bus Nachwuchs Bürgerecho Facebook Twitter YouTube Instagram Flickr E-Mail nachladen nach unten Panorama Service Regeln Aktuelles Wissen Marktplatz Finanzen & Gebühren Umwelt & Klima Logout Vorreiterin Talentschmiede Wissenschaft Kultur Großstadt Kompetenzen Kompass Projekte Sportehrung: Abstimmung Sportehrung: Kriterien Sportehrung: Meldeformular Sportehrung: Rückblick Barrierefreiheit Weg Aussicht Baum Gitarre Konfetti Sprechblase
Ümminger See

Herzlich willkommen

Ümminger See

Der Ümminger See im Osten Bochums ist ein beliebtes Ausflugsziel der Naherholung für Jung und Alt. Der Rundweg um den See ist ebenso beliebt wie der Spielplatz mit Basketballplatz und Boulebahn, Outdoor-Fitnessgeräte, viele Sitzplätze und Aussichtspunkte sowie die Beobachtung der Graureiher auf der Insel.

Der See wurde in den 70er Jahren künstlich angelegt und ist nach unten zum Grundwasser abgedichtet. Da die Gestaltung und die Aufenthaltsqualitäten nicht mehr zeitgemäß waren, hat sich mit Hilfe von Fördermitteln in den Jahren 2022 bis 2024 viel getan rund um den See:

Die große Betonpflasterfläche am Ende der Grillwiese wurde zu einer naturnahen Insel umgestaltet, die Wege wurden zur besseren Begehbarkeit befestigt, neue Abfallbehälter und Bänke wurden aufgestellt und das gesamte Nordufer hat ein neues attraktives Gesicht bekommen. Dazu erhielt die Promenade eine Beleuchtung, damit man sich auch in der Dämmerung noch sicher dort aufhalten kann. Die Leuchten werden in der Nacht herunter gedimmt.

Begleitend wurden Informationen zur Umwelt und dem Naturschutz durch einen QR-Lehrpfad und Infoschilder installiert. Weitere Informationen hierzu finden Sie unter den Punkten "Aktuelles" und "Rundweg: Natur am See".

Auch zum Thema „Gänse am Ümminger See“ finden Sie weitere Informationen.

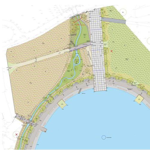
Grafik Rahmenkonzept Harpener Bach (Quelle: Stadt Bochum)

Die Neugestaltung der Flächen um den Ümminger See mit dem neuen Bachlauf des Harpener Bachs ist seit Ende 2024 abgeschlossen. Die Arbeiten waren Teil eines Gesamtkonzepts, das von den Harpener Teichen bis zum Ümminger See reicht.

Das Konzept beinhaltet eine Verbindungsleitung von den Harpener Teichen bis zum Ümminger See. Schon viele Jahre wird das Grubenwasser aus den ehemaligen Bergwerksschächten rund um Robert Müser durch die RAG in die Harpener Teiche gepumpt. Die Wassermengen füllen die Harpener Teiche und fließen seit Jahren gemeinsam mit dem Harpener Bach weiter in den Ümminger See.

Damit der Harpener Bach ohne die Beeinträchtigungen durch das Grubenwasser in einem eigenen Bachbett ökologisch ausgeglichen fließen kann, wurde er vom Grubenwasser getrennt. Das Grubenwasser, das von der Ruhrkohle AG als Ewigkeitslasten des Kohleabbaus in die Harpener Teiche geleitet wird, wird nun vom Auslauf der Harpener Teiche zum Ümminger See geführt.

Gleichzeitig wird der Harpener Bach um die Teiche herumgeführt und somit vom Grubenwasser getrennt. Bisher floss beides gemeinsam von den Harpener Teichen zum Ümminger See, durch den See hindurch und dann zur Ruhr. Jetzt sollen der Bach und das Grubenwasser getrennt voneinander fließen, um eine bessere ökologische Qualität im Harpener Bach zu erhalten.

Zusätzlich wurden ergänzend zu den offenen Rückhalteflächen unterirdisch große Kammern eingebaut, die ein Überfluten des Harpener Bachs bei Starkregenereignissen verhindern und die Wassermengen in den Ümminger See leiten, der dann als Regenrückhaltebecken dient.

Der Einlauf des Grubenwassers ist im Bereich der Stufenanlage am Nordufer des Ümminger Sees gut zu erkennen, da hier immer größere Wassermengen in den See fließen.

Der Harpener Bach hat nun durch das Vorschieben des Ufers in den Ümminger See ein neues Bachbett erhalten und fließt am südlichen Ende in den noch befestigten Langendreer Bach. Ein neuer Uferweg schließt den Rundweg um den See.

Einen wichtigen Beitrag zur Förderung des Umweltbewusstseins leistet ein Rundkurs rund um den See mit QR-Codetafeln rund um den See. Jung und Alt können auf ihm Interessantes über vielfältige Themen zum See und seiner Umgebung entdecken. Wer nicht mit seinem Handy die QR-Codes lesen möchte, kann auf vier Informationstafeln Wissenswertes zum See, der Flora und Fauna erfahren.

Eine kleine kindgerechte Broschüre, Die Ümminger SEEntdecker, lädt zum Entdecken der Umgebung am See ein. Sie ist beim Umwelt- und Grünflächenamt der Stadt Bochum erhältlich. Auch lädt ein Steinkreis mit Fernrohr als grünes Klassenzimmer zur Beobachtung der Vögel auf der Vogelinsel ein, oder einfach zu einer kleinen Pause.