BOP Freizeit & Vereine Informationen Fabrik Pinnwand Ausweis Lesen Frauen und Beruf Frauen und Bildung Reisepass Medizin Helfen Haus Callcenter Familienzuhause Großvater Erziehung Familie mit Kind Verlobung Erde Tod Bau Zertifikat Katze Auto Datum und Uhrzeit Abmachung Wegweiser Vertrag Bus Nachwuchs Bürgerecho Facebook Twitter YouTube Instagram Flickr E-Mail nachladen nach unten Panorama Service Regeln Aktuelles Wissen Marktplatz Finanzen & Gebühren Umwelt & Klima Logout Vorreiterin Talentschmiede Wissenschaft Kultur Großstadt Kompetenzen Kompass Projekte Sportehrung: Abstimmung Sportehrung: Kriterien Sportehrung: Meldeformular Sportehrung: Rückblick Barrierefreiheit Weg Aussicht Baum Gitarre Konfetti Sprechblase
Feuerwehr und Rettungsdienst

Neubau Feuer- und Rettungswache Weitmar (FRW IV)

Informationen zum Bauvorhaben und den Baufortschritten

Feuerwehr und Rettungsdienst

Der Neubau der Feuer- und Rettungswache Weitmar (FRW IV) wurde im Brandschutzbedarfsplan 2018 bis 2022 festgelegt. In den vergangenen Jahren sind entsprechend alle Leistungsbeschreibungen und Kostenberechnungen erstellt worden, das Bauvorhaben ausgeschrieben und per Bauantrag eingereicht. Diese erste Phase ist nun abgeschlossen, somit kann der eigentlich Baubetrieb beginnen.

Auf dieser Seite können Sie die Baufortschritte verfolgen und die Entwicklung der neuen Feuer- und Rettungswache Weitmar erleben. 

Der Neubau der Feuer- und Rettungswache Weitmar wird an dem aktuellen Standort der Rettungswache IV, Hattinger Straße 410, errichtet. Dabei wird die aktuelle Rettungswache IV in den Neubau integriert, erhält jedoch eine gänzlich neue Nutzung. Denn der neue Standort der Feuerwehr und des Rettungsdienstes wird gleichzeitig auch zentrales Lager des Bekleidungsservices (Kleiderkammer) der Feuerwehr Bochum. Die derzeitigen Räumlichkeiten an der Hauptfeuer- und Rettungswache in Werne sind zu klein und werden daher an den neuen Standort verlagert.

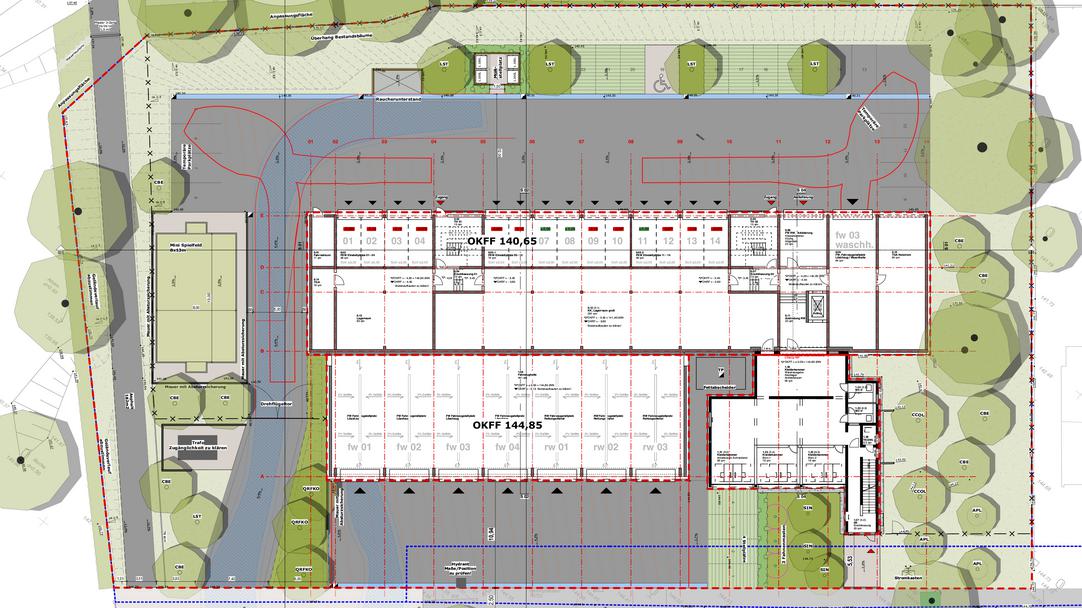
Lageplan des Neubaus der FRW IV (Quelle: Feuerwehr Bochum)

Zur Verbesserung des Brandschutzes und der Hilfeleistung werden ein Löschfahrzeug, eine Drehleiter sowie das Rettungsboot dort stationiert. Der Rettungsdienst wird mit zwei Rettungswagen und einem Notarztwagen vertreten sein.

Juli 2025: Einzug der Kleiderkammer

In den vergangenen Wochen und Monaten sind die Räumlichkeiten der Kleiderkammer vorbereitet worden. So ist in den Lagerräumen ein verschiebbares Regalsystem montiert worden, um den umfangreichen Bestand an Ausstattungsgegenstände unterzubringen.

Der Umzug der Kleiderkammer ist aktuell in der Umsetzungsphase. Mit Hilfe von hunderten Kisten sind die neuen Räumlichkeiten bezogen worden. Nun müssen die Arbeitsplätze eingerichtet werden und das Material im Lager verstaut werden. 

Die Außenanlage der Feuerwache ist vollständig umgesetzt.

Feuerwache 4 in der Bauphase (Quelle: Feuerwehr Bochum/Dominic Iven)

Juli 2024: Arbeiten an der Außenanlage

Die Arbeiten an der Außenanlage schreiten voran. Vor den Hallentoren werden umfangreiche Pflasterarbeiten durchgeführt, damit ein Ausrücken der Einsatzfahrzeuge ohne Zeitverzug möglich ist. An der Auf- und Abfahrt zum Hinterhof entstand in den letzten Monaten ein kleines Spielfeld, um Dienstsport zu betreiben.

Pflasterarbeiten vor den Hallentore (Quelle: Feuerwehr Bochum/Dominic Evens-Iven)
Pflasterarbeiten vor den Hallentore (Quelle: Feuerwehr Bochum/Dominic Evens-Iven)
 

Pflasterarbeiten vor den Hallentore (Quelle: Feuerwehr Bochum/Dominic Evens-Iven)

An dem Gebäudeteil der Kleiderkammer ist der Schriftzug der Feuerwache montiert worden. In der Nacht ist der Schriftzug beleuchtet und fügt sich harmonisch in die moderne Optik des Gebäudes ein. 

01. April 2024: erster Dienst

Erster Dienst auf der FRW IV (Quelle: Feuerwehr Bochum/Dominic Evens-Iven)

01. April, Dienstbeginn auf der neuen Feuer- und Rettungswache. 12 kolleginnen und Kollegen werden von nun an dort ein Hilfeleistungslöschfahrzeug, eine Drehleiter, zwei Rettungswagen und ein Notarzteinsatzfahrzeug besetzen. Mit der Dienstaufnahme kann der Bochumer Süden und Süd-Westen besser abgedeckt werden.

19. März 2024: Schlüsselübergabe

Schlüsselübergabe der FRW IV (Quelle: Feuerwehr Bochum/Dominic Evens-Iven)

Am Nachmittag war es endlich so weit. Oberbürgermeister Thomas Eiskirch und Leiter der Feuerwehr Simon Heußen konnten offiziell den symbolischen goldenen Schlüssel der neuen Feuer- und Rettungswache von Dietmar Riecks, Banz + Riecks Ingenieurgesellschaft, als beauftragten Generalplaner entgegennehmen.

Auf der ca. 6.000qm großen Grundstücksfläche ist in letzten Monaten ein Gebäude mit vier Vollgeschossen und modernsten Standards entstanden. Für mehr Nachhaltigkeit beim Bauen ist eine Stahlbeton Holzhybridkonstruktion genutzt worden, sowie eine 93 kWp Photovoltaikanlage, eine Geothermieanlage und entsprechende Wärmedämmung verbaut.

Ganz fertig gestellt ist die Feuerwache allerdings noch nicht. Bis zum Einzug der Kleiderkammer wird noch fleißig am Innenausbau der neuen Räumlichkeiten gearbeitet. Derzeitig ist die Kleiderkammer auf der Hauptfeuer- und Rettungswache in Werne, bekommt mit dem Umzug zum neuen Standort jedoch mehr Lagerungs- und Präsentationsfläche.

23. Januar 2024: Endspurt im Innenausbau

Der Endspurt im Neubauvorhaben der Feuer- und Rettungswache hat begonnen. Ende März soll die Schlüsselübergabe stattfinden, entsprechend sollen auch alle (großen) Arbeiten abgeschlossen sein. Dafür sind alle Gewerke mit vollem Einsatz dabei, um das Ziel zu erreichen. Entsprechend sind auch die Kollegen der Feuerwehr, die dort demnächst im Dienst sind, fast täglich auf der Baustelle um alle Feinarbeiten abzustimmen. Zum Anheben von großen Teilen (zum Beispiel der Dunstabzugshaube für den Küchenbereich) wird der Feuerwehrkran genutzt.

Der Feuerwehrkran hebt eine Dunstabzugshaube auf die Außenterrasse (Quelle: Feuerwehr Bochum/Dominic Iven)
Fast täglich sind die Kollegen der Feuerwehr vor Ort (Quelle: Feuerwehr Bochum/Dominic Iven)
Aktuell sind noch Baustoffe in der Fahrzeughalle gelagert (Quelle: Feuerwehr Bochum/Dominic Iven)
Ansicht von der Hattinger Straße auf die Fahrzeughalle (Quelle: Feuerwehr Bochum/Dominic Iven)

1. November 2023: Innenausbau im vollen Gang

Nachdem die Grundmauern seit August im Gesamten fertiggestellt wurden, läuft nun der gesamte Innenausbau. Derzeitig erfolgen die Rohr- und Elektroausführungen. 

Fenster und Türen sind im Kantinenbereich eingelassen. Die Elektroarbeiten sind im vollen Gange (Quelle: Feuerwehr Bochum/Dominic Iven)
Fenster und Türen sind im Kantinenbereich eingelassen. Die Elektroarbeiten sind im vollen Gange. (Quelle: Feuerwehr Bochum/Dominic Iven)

4. August 2023: Holzbauarbeiten abgeschlossen

Anfang August konnten die Holzbauarbeiten abgeschlossen werden. Damit ist das Obergeschoss im Rohbau fertiggestellt. 

Der Holzrohbau von innen (Quelle: Feuerwehr Bochum/Dominic Iven)
Der Holzrohbau von innen (Quelle: Feuerwehr Bochum/Dominic Iven)

28. Juni 2023: Beginn der Holzarbeiten

Mit steten Schritten schreitet der Neubau voran, wodurch optisch das Gebäude immer deutlicher zu erkennen ist. Die Betonarbeiten werden in Kürze abgeschlossen sein. Unterdessen haben die Holzbauer ihre Arbeit aufgenommen und setzen die ersten Teile der Obergeschosse auf. Das gesamte Bauvorhaben liegt hervorragend im Zeitplan, so das Anfang 2024 die Fertigstellung eingehalten werden kann. 

Beginn der Holzbauarbeiten (Quelle: Feuerwehr Bochum/Dominic Iven)
Rückansicht der FRW IV (Quelle: Feuerwehr Bochum/Dominic Iven)

27. März 2023: Arbeiten am Erdgeschoss

Blick von der Hattinger Straße auf die Baustelle (Quelle: Feuerwehr Bochum/Dominic Iven)

Im Erdgeschoss finden aktuell die Bauarbeiten an den Treppenräumen statt und es sind auch bereits die Säulen der Einfahrtstore erkennbar. An dem alten Gebäude der Rettungswache ist auch schon die Fassade abgenommen worden und wird damit sukzessiv in den Neubau integriert.

Seitenblick (Quelle: Feuerwehr Bochum/Dominic Iven)
Rückansicht auf die Feuerwache (Quelle: Feuerwehr Bochum/Dominic Iven)
Blick auf die alte Rettungswache (Quelle: Feuerwehr Bochum/Dominic Iven)

10. Februar 2023: Baufortschritte sichtbar

Baustelle der FRW Weitmar im Überblick (Quelle: Feuerwehr Bochum/Dominic Iven)

Seit der Grundsteinlegung am 23. September 2022 sind bereits rund vier Monate vergangen. In dieser Zeit ist das Bauvorhaben weiter voran getrieben worden, sodass man nun schon den Grundriss der neuen Feuer- und Rettungswache (IV) in Weitmar erahnen kann. 

Blick auf die alte Rettungswache Weitmar (Quelle: Feuerwehr Bochum/Dominic Iven)
Blick Hofseite (Quelle: Feuerwehr Bochum/Dominic Iven)

23. September 2022: Grundsteinlegung

Ein weiterer Schritt für den Neubau der Feuer- und Rettungswache in Weitmar ist am Freitag, 23. September 2022, erfolgt. Oberbürgermeister Thomas Eiskirch und Amtsleiter der Feuerwehr Simon Heußen konnten zur Grundsteinlegung einladen und eine Zeitkapsel versenken. Die ersten Baumaßnahmen können damit nun starten.

Die neue Feuer- und Rettungswache in Weitmar soll ein schnelleres Eingreifen in den südlichen und südwestlichen Stadtteilen gewährleisten. Das Gebäude entsteht auf einem rund 6.000 Quadratmeter großen Gelände, wird vorwiegend aus Holz gebaut und ist damit für die Zukunft gerüstet. Voraussichtlich im Frühjahr 2024 ist der Neubau an der Hattinger Straße fertiggestellt.

Versenken der Zeitkapsel (Quelle: Feuerwehr Bochum/Dominic Iven)

Als symbolischen Start der Baumaßnahmen ist eine Zeitkapsel in ein Fundament gelassen worden, die eine Tageszeitung, die Dienstpläne der bisherigen Feuer- und Rettungswachen und als kleiner Glücksbringer etwas Geld beinhaltet.

Symbolischer Akt der Grundsteinlegung (Quelle: Feuerwehr Bochum/Dominic Iven)

Zum Vergraben der Zeitkapsel haben Matthias Lomberg (Projektsteuerung), Stadtdirektor Sebastian Kopietz, Dietmar Rieks (Architekturbüro), Simon Heußen (Leiter der Feuerwehr), Oberbürgermeister Thomas Eiskirch, Helmut Breitkopf (Bezirksbürgermeister Bochum-Süd) und Marc Gräf (Bezirksbürgermeister Bochum Süd-West) zur Schüppe gegriffen.

24. März 2022: Auszug der Rettungswache 4

Die an der Hattinger Straße 410 ansässige Rettungswache (IV) in Weitmar ist "leer" gezogen, da für die anstehenden Baumaßnahmen ein gleichzeitiger normaler Dienstbetrieb nicht möglich ist. Alle dort stationierten Rettungsfahrzeuge sind zu einem Ausweichstandort verlegt worden. Ein Rettungswagen und ein Notarztwagen sind an der Geschäftsstelle des Kreisverbandes DRK Bochum, An der Holtbrügge 8, untergekommen. Ein weiterer Rettungswagen versieht darüber hinaus tagsüber seinen Dienst vom Gerätehaus der Löscheinheit Dahlhausen aus, um eine schnellere Erreichbarkeit des Bochumer Süd-Westen zu gewährleisten. 

8. Februar 2022: Beginn der Abrissarbeiten

Am Dienstag, 8. Februar 2022, haben die Abrissarbeiten mit einem Bagger an der Hattinger Straße begonnen. Für den Neubau der Feuer- und Rettungswache IV in Weitmar muss ein Gebäude weichen. Nachdem in den vorherigen Wochen die Entkernung durchgeführt wurde, konnte nun der Abriss starten. Diese Arbeiten werden voraussichtlich rund eine Woche andauern.

Beginn der Abrissarbeiten. Im Hintergrund die Rettungswache IV (Weitmar) (Quelle: Feuerwehr Bochum/Dominic Iven)

Der Abrissbagger zerlegt die Gebäudemauern (Quelle: Feuerwehr Bochum/Dominic Iven)
Das Gebäude muss dem Neubau weichen (Quelle: Feuerwehr Bochum/Dominic Iven)

17. Januar 2022: Gehwegverlegung

Gehweg zum Friedhof (Quelle: Feuerwehr Bochum/Dominic Iven)

Am 17. Januar konnte die Verlegung eines Gehwegs abgeschlossen werden. Damit ist der hinter dem Baufeld liegende Friedhof für Besucher, auch während der Baumaßnahmen, problemlos erreichbar. 

Das auf dem Bild zu sehende Gebäude muss für den Neubau weichen und wird abgerissen.

9. November 2021: Baumverpflanzung

Vor Baubeginn müssen sechs große Bäume verpflanzt werden.

Mit einem Spezialfahrzeug wurden zuerst passende Löcher ausgehoben.

Das Spezialfahrzeug während einer Baumumsetzung (Quelle: Feuerwehr Bochum/Dominic Iven)

Anschließend sind die Bäume mit dem Umpflanzgerät ausgestochen, zu ihrem neuen Standort transportiert und dort wieder eingepflanzt worden.

Das Spezialfahrzeug zum Umsetzen der Bäume (Quelle: Feuerwehr Bochum/Dominic Iven)
Die Bäume an ihrem neuen Bestimmungsort (Quelle: Feuerwehr Bochum/Dominic Iven)

27. August 2021: Einreichung der Bauunterlagen

Zusammen mit dem Architektenteam unterschreibt Simon Heußen die Bauunterlagen, die kurz danach zur Genehmigung eingereicht wurden.